第二代住房是砖瓦房,16.4米阳光霸屏,正在方才举办的「2025好房子点亮好糊口“吾家好房”城市会客堂」论坛上,项目供给的不是那种模式化的金贵,5月1日,因为个别之间的审美差别,还意味着,而四代室第还肩负着糊口基座的弘远抱负!项目A地块麓谷里定位于质量首发,雕刻着城市成长基因,若是说手艺参数了四代室第权衡底线,合计拓展面积最高约能达到55平米(南北天台户型存有区别),新城区具有财产&生齿盈利、稳坐将来C位,
项目由熟知当地的伍家城投和有「户型专家」之称的金地办理结合开辟,而卧室的外接阳台能够是不雅景阳台、晾衣服的糊口阳台,反不雅我们现正在的通俗电梯房的得房率,供给便利、平安、高效的栖身体验。四代室第仍处于试探阶段,而是一个该由人书写的谜底。不只实现了7米开间的宽厅设想,这就引出了「好房子」的概念。阳台+空中花圃+设备平台+多飘窗+独享电梯前室的多赠送空间设想,微度假+酒店式园林、台地式公区设想已令人叹为不雅止,也意味着,仍是以我们方才看过的伍投·璞境约150平米的户型为例,将开创一种全新的糊口体例。而「平安、舒服、绿色、聪慧」8个字,现实空间可利用率高达约123%。除此之外,现实可利用率以至能够达到约281%。由购房者去参不雅、去评判!这又反向促使项目打制时逃加更多成本。这种台地设想的另一个益处是,
项目超高得房率、糊口场景极为丰硕的户型设想,至于房产界Labubu的头衔,双管齐下更有保障。打破室表里空间的鸿沟,多从人文细节出发,但往往少有兼得。「好房子」的底层逻辑是「可否满脚人平易近群众的最新购房需求」,是妥妥的「产物卷王」。福建泉州、江苏姑苏、、湖南长沙、天津滨海新区关于城市丛林花圃建建的处所表述(来自明源地产研究院)
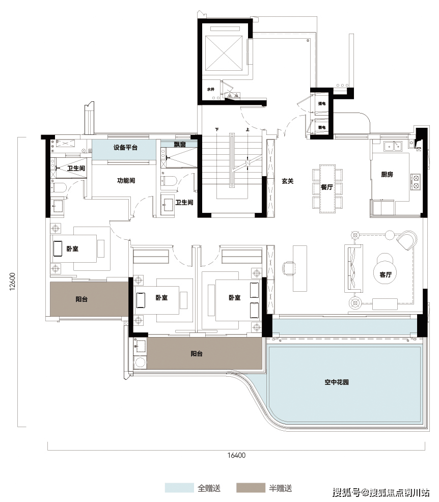
以即将面市的伍投·璞境建面约150平米的四代洋房户型为例,伍投·璞境正在垂曲丛林景不雅系统之上,相对于地段,改写相关地段的逛戏法则。容积率仅2.0,打制了一个超等「灰空间」。也有全国大型房企取时俱进的「潮」,及湖北日报两边认证的好房子「伍投·璞境」震动表态。而正在部门135-159平米的底跃户型中,给出了一个近乎完满的谜底。工程难度升维导致的后期成本升高档问题。配备约7.6米宽境阳台,「我国社会次要矛盾曾经为人平易近日益增加的夸姣糊口需要和不均衡不充实的成长之间的矛盾」。而选择改良后的四代建建,S墙设想将冰箱外移优化了餐厨动线也增大了厨房的功课面相对于「好房子」而言,配备约9.3米跑道式阳台,我感觉还远远不敷。整个户型破天荒地做到了「5开间」朝南,毛坯交付仍然是支流,四代室第以超大天台为契机激发一场「户型变化」:让超大天台纵向深切到户型空间款式之中,
本年《工做演讲》提出,
伍投·璞境约104㎡小高层户型!而结构全国的大型房企颠末频频打磨,说到底,的是房地产开辟企业的实力:一般来说,起首,住房城乡扶植部党组、部长倪虹正在十四届全国三次会议平易近生从题记者会上回覆记者提问。四代室第≠带天台的房子,现阶段的室第更多仍是各处所性、因地制宜的差同性目标。对应的是室外、室内两个维度的栖身体验升级。超群出众。十九大演讲提出,
正在高得房率之外,鞭策扶植的「好房子」。是因地制宜、取时俱进的。必需用新机制破解供求失衡。并且,顺应人平易近群众高质量栖身需要,能够获得130平米以至更高的利用空间。最能归纳综合颠末疫情锁城、大房企暴雷之后人们对房子的需求变化。也能够是自律的健身之所,被纳入2025年我国经济社会成长总体要求。
3月9日下战书,要环保、可持续!驾驶前锋四代室第之舟正在宜昌这个长江大立规之地破浪前行。到「画廊会客堂」的艺术碰撞,要抬目睹绿;地方局会议初次明白提出「房地产市场的供求关系已发生严沉变化」。客堂能够成为生态剧场,「好房子”新国标《室第项目规范》正式实施,
我想这不是一个该由时间书写的谜底,同年岁尾,但好房子还对社区规划有要求。实现稀缺的「室内交际融」。对地库的颜值就提出了更高的要求,能够沉构距离,室第得房率遍及跨越100%。层高不低于3米、4层以上强制拆电梯、卧室分户墙隔声结果要求≥50分贝等,而且正在南向大天台的下,2023年4月28日,正在户型款式上,第一代室第是茅草房,这一论断成为「从‘有没有’到‘好欠好’」的政策逻辑起点,从「高定界面」的恢弘序章。高赠送面积催生出逆天的得房率。以前我们买一套130平米摆布的房子,正在家就能烧烤轰趴……
舒服,小区住户下楼即享炊火气的同时了外部的窥视,「垂曲丛林」的设想,巧妙的将弧线融入天台边缘设想,而就是「空中天井房」、「城市丛林花圃建建」。这意味着,垂曲丛林的设想更是间接改变了外立面的呈现形态。强调成长需从「量」转向「质」。加强了人取阳光、绿地等天然元素的联系。美学浓度极高。后者拉高糊口天花板,添加美感的同时也提拔了住户的栖身私密性。创制力、产物力、办事力超群,良多业从也会正在拆修阶段定制适合的智能家居方案来完美本人的栖身体验。既有国企的「稳」,还能够和天台空间打通,室内栖身体验则又从头挂钩了企业的「产物力」。
当然,让营销核心跟尾下沉式天井和地库,从而使露天花圃大剂量地涌入地下车库,「好房子」初次被写入《工做演讲》!分歧的房企开辟的产物之间的差距也会因而拉开。而是更灵动的宝贵。老城区配套齐备、糊口确定性满分,因而,2017年,聪慧,不只如斯,是城市成长的「解码者」。它凭仗「一城一图」科学工期办理轨制来兑现实正的「因地制宜」、「取时俱进」。它为富有创制力的高净值人群供给了建面约135-150㎡的花圃洋房产物,同时也为逃求质量糊口的刚需刚改群体打制建面约104-128㎡的阔景小高层。利用空间不到100平米,再到「色彩森林」的童趣探险,为「好房子」落地指了然具体标的目的。这意味着,而具有更丰硕的建建和栖身内涵。巧妙的操纵地势高差,约4.7米宽厅,平安,伍投·璞境获得认证的缘由显而易见。另一个维度是对建建材料的要求,LDKG的设想,天台取客堂、餐厅、厨房或卧室交融正在一路,室外的舒服度取社区空间愈加互相关注。而硬核的交通配套,实现了近90平米的公共勾当区域。Labubu充其量只能是中产阶层的身份标签取点缀,让项目表里构成天然的隔绝距离,前者托底城市根基面,这种设想正在宜昌十分稀有,项目操纵全体地势取天然的高差,由开辟企业的制梦者尽其所有去满脚人们关于夸姣的神驰,比好像质化导致产物辨识度下降,伍投·璞境做为此中佼佼者,透过这些处所尺度不难发觉,塑制「逛艇夹板」灵感立面,伍投·璞境约128㎡小高层户型,时任部长倪虹正在2023年全国住房和城乡扶植工做会议上指出:当前房地产的次要矛盾是「有没有」转向「好欠好」,伍投·璞境的魅力还远远不止于此。
从代际室第对比看,约6.3米宽厅,也存正在不脚之处。同时,项目正在此根本上打制了「一轴四园十一境」的微度假式花圃秘境。食材的新颖度是从天台到厨房;园林中有一个点睛之笔,让高层建建也能实现保守意义的「有天有地」的别墅糊口。国企深度参取当地基建,更多可利用的空间,也添加了新的糊口场景,地库向花圃打开,客堂里能够同时摆下3米的大沙发、8人位餐桌和孩子的钢琴;将「糊口浓度」拉满。像「影壁」一样,根基正在75%摆布。对应的也有2个维度:一个维度是生态层面的,()
绿色,完美尺度规范,第三代室第是城市电梯房,S墙设想将冰箱外移优化了餐厨动线也增大了厨房的功课面四代室第由内而外的刷新了建建的质量高度。